
















































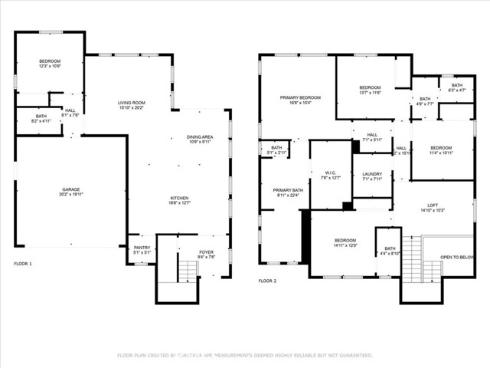
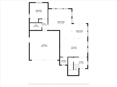
This luxurious residence located in Gated IronRidge community in Portola Hills. No Mello Roos! It features five bedrooms and four full bathrooms. The stunning gourmet kitchen is equipped with upgraded cabinetry, a spacious walk-in pantry, a large quartz island. It opens to a spacious living area that’s perfect for entertaining or relaxing with family. A guest bedroom and full bathroom on main floor. Upstairs, you will find a versatile loft, a convenient upstairs laundry room, four bedrooms, and three full bathroom. Primary suite with large closet and an ensuite bath featuring dual sinks, Vanity area, shower, a standalone soaking tub. IronRidge offers resort-style amenities, including a heated pool and spa, clubhouse, BBQ areas, multiple playgrounds and parks, dog parks, and scenic trails.