









































































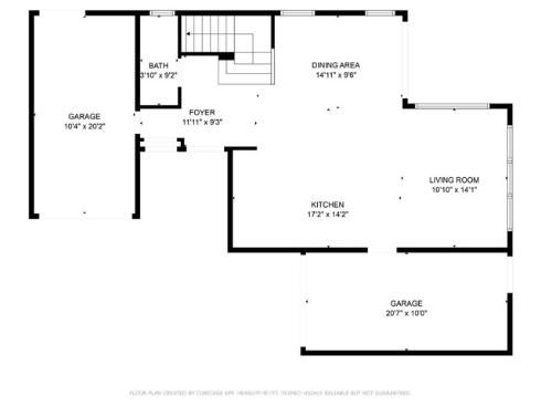
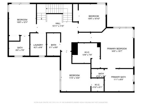
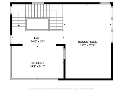
***PRICE IMPROVEMENT*** Built in 2021 and situated in the prestigious Serrano Summit community, this modern and meticulously designed residence offers the rare advantage of No Mello-Roos and a low tax rate. Spanning approximately 2,401 square feet, this 3-story home features 4 spacious bedrooms, 3.5 elegantly appointed bathrooms, and a versatile third-floor loft complete with a private balcony and custom mini bar—ideal for a home office, game room, or private theater. The open-concept main level showcases a sleek, contemporary kitchen adorned with quartz countertops, soft-close cabinetry, an upgraded designer backsplash, luxury vinyl plank flooring and extra plush carpeting throughout for both style and easy maintenance. The adjoining living and dining areas flow seamlessly for effortless entertaining, complemented by a well-placed powder room. All bedrooms are thoughtfully positioned on the second level. The primary suite features recessed lighting and ceiling fan. The spa-inspired primary bath boasts floor-to-ceiling tiled shower walls, offering a luxurious retreat. Expansive windows throughout the home bathe the interior in natural light. Step outside to a low-maintenance backyard, designed for relaxed outdoor living. The property also includes two separate garages and a driveway—one equipped with an EV charging station. Additional upgrades include a paid-off 20-panel solar system, tankless water heater, and a whole-house fan for energy-efficient comfort year-round. Residents of Serrano Summit enjoy resort-style amenities including a pool and spa, clubhouse with two outdoor kitchens, barbecue areas, pickleball courts, two community parks and scenic firepits with stunning views. This is California living at its finest—modern, refined, and move-in ready.