714-914-4996

261 Siena ,
Lake Forest, CA 92630

$1,426,000

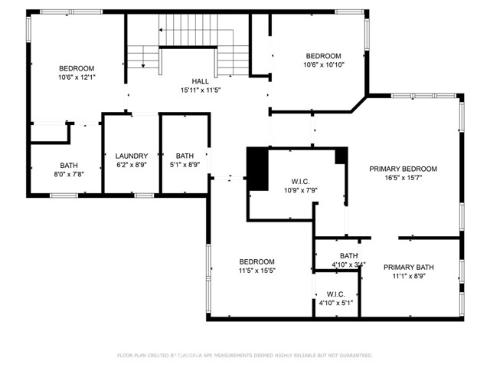
This stunning 3-story home, built in 2021 and situated in the prestigious Serrano Summit community, offers a rare combination of modern design and financial efficiency with No Mello-Roos and a low tax rate. Spanning approximately 2,401 square feet, the residence features 4 spacious bedrooms, 3.5 elegantly appointed bathrooms, and a versatile third-floor loft complete with a private balcony and custom mini-bar—ideal for an executive home office, game room, or private theater. The open-concept main level showcases a sleek, contemporary kitchen adorned with quartz countertops, soft-close cabinetry, an upgraded designer backsplash, and luxury vinyl plank flooring throughout for effortless entertaining. All bedrooms are thoughtfully positioned on the second level, including a primary suite with recessed lighting and a spa-inspired bath boasting floor-to-ceiling tiled shower walls. The property is packed with high-value upgrades, including a fully paid-off 20-panel solar system, a tankless water heater, a whole-house fan, and two separate garages with a private driveway—one equipped with an EV charging station. Step outside to a low-maintenance backyard or enjoy resort-style community amenities including a pool, spa, clubhouse with outdoor kitchens, pickleball courts, and scenic firepits with stunning views. Modern, refined, and move-in ready—this is California living at its finest.

Basic Information

MLS #:
TR26043107

Price:
$1,426,000

Price
(per sq ft):
$593.00

Address:
261 Siena ,
Lake Forest, CA 92630

MLS Area:
699 - Not Defined

Subdivision:

Property
Type:
Condominium

Days on Market:
15

Status:
Active

Bedrooms:
4

Bathrooms:
4

Full Baths:
3

Size (sq ft):
2,401 sq ft

Lot Size:
sq ft

Year Built:
2021

Sale Type:
Standard

Rooms in Home

Rooms:
Walk-In Closet, Laundry, All Bedrooms Up, Kitchen, Great Room, Living Room, Loft

Eating Area:
Dining Room

Laundry:
Individual Room, Gas & Electric Dryer Hookup, Upper Level, Washer Hookup

Entry Location:
1

Interior Features

Fireplace:
None

Cooling:
Whole House Fan, Central Air

Heating:
Central

Floor:
Vinyl, Carpet

Appliances:
Gas Cooktop, Disposal, Microwave, Instant Hot Water, Tankless Water Heater, Gas Oven, Dishwasher

Interior Features:
Balcony, Quartz Counters, Dry Bar, Block Walls, Ceiling Fan(s), Open Floorplan

Security:

Accessibility:

Garage and Parking

Garage:
Attached

Garage:
2 Spaces

Carport:
0 Spaces

Parking:
Garage, Electric Vehicle Charging Station(s), Direct Garage Access, Driveway, Garage Door Opener, Street

Home Owners Association

HOA Dues 1:
$385.00 / Monthly

HOA Dues 2:
$

HOA Amenities: 
Pickleball, Playground, Pool, Fire Pit, Barbecue, Clubhouse, Outdoor Cooking Area, Spa/Hot Tub, Picnic Area

Utilities

Water:
Public

Utilities:
Natural Gas Connected,Sewer Connected,Electricity Connected,Water Connected

School Information

District:
Saddleback Valley Unified

Elementary:

Middle:

High:

Exterior Features

Pool:
Association, In Ground, Heated

Spa:
Association

Patio:
Concrete

View:
Mountain(s), Neighborhood, Hills

Construction:

Foundation:

Roof:

Windows:
Double Pane Windows

Common Walls:
1 Common Wall

Levels:
Three Or More

Lot Features:

Additional Information

County:
Orange

Senior Community:
No

Community Features:
Park

Other Structures:

Structure Condition:

Direction Faces:
North

Listed by:
Homequest Real Estate , Roshan Patel , 01949674

Co-Listed:

Last
Updated:
3/17/2026 11:22 PM

261 Siena ,
Lake Forest, CA 92630