






















































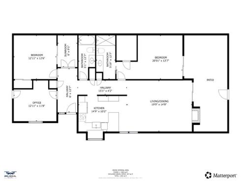
Tucked away at the end of a quiet street in Aegean Heights, this distinct single-level end unit is enveloped by landscaped gardens and serene grassy hillsides, offering privacy and natural beauty. At the heart of the home is a stunning atrium—a true sanctuary—featuring a complete pond ecosystem with circulating pump, waterfall, lush plantings, and an automatic timer. Screened doors allow you to keep the atrium open year-round for the ultimate indoor-outdoor experience, with direct access from both the entryway and guest bedroom. The dining room and kitchen feature lush views of a garden, lawn area and hillside, while the remodeled 2020 kitchen impresses with soft-close cabinetry, pull-outs, deep storage, granite countertops, stainless steel appliances, and under-cabinet lighting. The tasteful fireplace remodel and smart, adjustable lighting elevate the living areas, complemented by sensible flooring for the active lifestyle. The primary suite delivers new carpet, keyless entry, and direct access to the private back courtyard with hot tub. The newly carpeted guest bedroom includes atrium access to soothe the soul. Home systems that are synced to Kasa app integration include lighting, garage door, alarm, and cameras, plus ceiling fans, attic fans, and A/C for year-round comfort. The third bedroom currently serves as an office with direct access to the garage. Should you choose to wall off the garage access in the third bedroom, there is an additional door to the garage near the entrance. The oversized garage includes extensive built-in storage, a deep workshop area, and a spacious loft with stair-step access and electrical. This unit is the perfect distance from the resort-style amenities in Aegean Heights which include a community clubhouse, pool, hot tub and tennis courts. If you are looking for privacy, attention to detail and pride of ownership that spans decades, this is the home for you! Ask your REALTOR for the extensive list of upgrades and amenities.