













































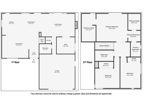
Panoramic Perfection: Turnkey Luxury on a Coveted Mission Viejo Street A rare opportunity awaits on one of Mission Viejo's most sought-after cul-de-sacs. Perched high on a premium corner lot, this pristine & fully remodeled residence captures an expansive 270-degree panoramic view that sweeps from the sparkling coast to nightly Laguna Canyon sunsets and Disneyland fireworks. This home is a true masterpiece that has been meticulously upgraded & maintained to the highest standard. It offers the ultimate blend of luxury living & breathtaking views. The exceptional condition and high-end upgrades define this property. A gourmet chef’s kitchen is the heart of the home, designed for both serious cooking & elegant entertaining. It features premium Thermador WiFi appliances, hand-picked tile accents, a beadboard ceiling, & a massive 10' quartz island complete with generous storage & a dedicated wine & beverage fridge. The open-concept living & dining areas flow seamlessly through multiple sets of sliding glass doors, turning coastal views into your daily backdrop. Step outside to an entertainer’s dream where the sweeping vistas take center stage to create a true sanctuary for year-round gatherings. The resort-style backyard offers a saltwater pool & spa with a waterfall feature, an outdoor kitchen incl. a built-in BBQ island and beverage fridge, a fire pit, multiple refined seating areas, and a gazebo tucked within the beautifully landscaped side garden. The home’s impeccable condition is reflected in its extensive list of renovations, including a PEX re-pipe, new HVAC, and comprehensive upgrades. The front-yard enjoys new hardscaping, stone accents, and landscape lighting to provide impressive curb appeal. The nearly 8,000 sq ft lot offers not only privacy but also the potential to add an ADU. On the main level, a fourth bedroom with serene views is currently used as a stylish office. Upstairs, the primary suite features two walk-in closets, an ensuite bathroom, and a private balcony. Imagine starting your day by taking in the mountain landscapes or enjoying your evening surrounded by the sparkle of the city lights below. Mission Viejo's residents enjoy exclusive Lake Mission Viejo privileges including boating, beaches, concerts, and lakeside dining all Around the corner. This is more than just a home; this property is a refined expression of luxury, meticulous care, and the kind of view-centric living that turns everyday moments into something extraordinary.