714-914-4996

27887 Mazagon ,
Mission Viejo, CA 92692

$739,000

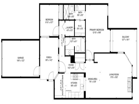
VIEWS** VIEWS** VIEWS**** Don't let this one get away!! Seller relocating ...must sell! Welcome to this beautifully remodeled 2-bedroom, 2-bathroom ground-level home, nestled in the prestigious Lake Mission Viejo community. This single-story unit offers gorgeous panoramic views, abundant natural light, and an open, airy layout designed for modern living. Step into a bright and inviting living room, featuring a cozy fireplace and seamless access to a spacious private balcony. It also flows into a comfortable dining space. The kitchen features granite countertops, stainless steel appliances, and a breakfast nook. The primary suite is a peaceful retreat, offering its own balcony access, a generous walk-in closet, and a beautiful ensuite bathroom with a walk-in shower and dual vanity. The second bedroom is bright and also features a dual vanity and walk-in shower. Additional highlights include in-unit laundry, a porch, a private 1-car garage, and an assigned covered carport space. Residents enjoy exclusive access to Lake Mission Viejo's top-tier amenities--including beaches, boating, swimming, picnic areas, summer concerts, and more. This turnkey home offers the perfect blend of comfort, style, and resort-style living in one of Mission Viejo's most desirable communities. Don't miss the opportunity to make it yours!

Basic Information

MLS #:
219144237PS

Price:
$739,000

Price
(per sq ft):
$651.00

Address:
27887 Mazagon ,
Mission Viejo, CA 92692

MLS Area:
MN - Mission Viejo North

Subdivision:
Not Applicable-1

Property
Type:
Condominium

Days on Market:
13

Status:
Active

Bedrooms:
2

Bathrooms:
2

Full Baths:
2

Size (sq ft):
1,135 sq ft

Lot Size:
854,021 sq ft

Year Built:
1978

Sale Type:
Standard

Rooms in Home

Rooms:
Living Room

Eating Area:

Laundry:
Individual Room

Entry Location:

Interior Features

Fireplace:
Gas, Living Room

Cooling:
Central Air

Heating:
Forced Air

Floor:
Tile

Appliances:

Interior Features:
Furnished, Recessed Lighting, Storage

Security:
24 Hour Security, Gated Community

Accessibility:

Garage and Parking

Garage:
Attached

Garage:
1 Spaces

Carport:
0.00 Spaces

Parking:
Garage Door Opener

Home Owners Association

HOA Dues 1:
$579.00 / Monthly

HOA Dues 2:
$28.33 / Monthly

HOA Amenities: 
Sauna, Playground, Lake or Pond, Other, Barbecue, Maintenance Grounds

Utilities

Water:

Utilities:

School Information

District:

Elementary:

Middle:

High:

Exterior Features

Pool:

Spa:

Patio:

View:

Construction:

Foundation:

Roof:

Windows:

Common Walls:

Levels:

Lot Features:
Sprinkler System, Planned Unit Development

Additional Information

County:
Orange

Senior Community:
No

Community Features:

Other Structures:

Structure Condition:
Updated/Remodeled

Direction Faces:

Listed by:
eXp Realty of Southern California, Inc , Kathi Jesse , 01140971

Co-Listed:

Last
Updated:
3/17/2026 7:05 PM

27887 Mazagon ,
Mission Viejo, CA 92692