714-914-4996

1206 Mariners ,
Newport Beach, CA 92660

$4,600,000

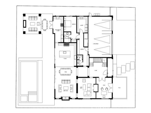
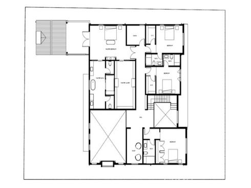
RARE RTI OPPORTUNITY IN PRESTIGIOUS DOVER SHORES Attention developers, investors, or owner-users looking to build the ultimate dream home in the highly coveted community. This exceptional project comes with fully approved architectural plans for a stunning two-story home featuring 5,660 sq. ft., 5 bedrooms, office, study room, secondary living room, and 5.5 baths. The thoughtfully designed main level includes a service kitchen with an oversized island and bar seating, flowing seamlessly into an expansive living area. Floor-to-ceiling glass doors open to the front patio, creating an ideal indoor/outdoor living experience. The dramatic great room impresses with its soaring ceilings and statement fireplace. Upstairs, the private primary suite offers a true retreat complete with a sauna, soaking tub, walk-in shower, dual vanities, spacious walk-in closet, and a private balcony. Three additional en-suite bedrooms complete the second level. Additional features include a pool and an oversized 3-car garage with EV-charging capability. Permits and plans are expected to be delivered in January 2026 at the close of escrow. An exceptional chance to customize and build your dream home in one of Southern California’s most desirable coastal neighborhoods. Price includes the existing house and approved plans only. Construction costs are not included.

Basic Information

MLS #:
OC25267088

Price:
$4,600,000

Price
(per sq ft):
$1,787.00

Address:
1206 Mariners ,
Newport Beach, CA 92660

MLS Area:
N7 - West Bay - Santa Ana Heights

Subdivision:
Dover Shores Viewpoint (DSAV)

Property
Type:
Single Family Residence

Days on Market:
55

Status:
Active

Bedrooms:
5

Bathrooms:
6

Full Baths:
5

Size (sq ft):
2,573 sq ft

Lot Size:
8,910 sq ft

Year Built:
1965

Sale Type:
Standard

Rooms in Home

Rooms:
All Bedrooms Down

Eating Area:

Laundry:
Inside

Entry Location:
Front

Interior Features

Fireplace:
Family Room

Cooling:
Central Air

Heating:

Floor:

Appliances:

Interior Features:

Security:

Accessibility:

Garage and Parking

Garage:
Attached

Garage:
3 Spaces

Carport:
0 Spaces

Parking:

Home Owners Association

HOA Dues 1:
$0.00 /

HOA Dues 2:
$

HOA Amenities: 

Utilities

Water:
Public

Utilities:

School Information

District:
Newport Mesa Unified

Elementary:

Middle:

High:

Exterior Features

Pool:
Private

Spa:

Patio:

View:
Neighborhood

Construction:

Foundation:

Roof:

Windows:

Common Walls:
No Common Walls

Levels:
One

Lot Features:
Front Yard, Yard

Additional Information

County:
Orange

Senior Community:
No

Community Features:
Sidewalks, Street Lights

Other Structures:

Structure Condition:

Direction Faces:

Listed by:
Mulberry Real Estate Inc , Sam Kilic , 01819341

Co-Listed:

Last
Updated:
3/17/2026 7:18 PM

1206 Mariners ,
Newport Beach, CA 92660