

















































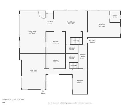
Presenting 1501 & 1503 Cliff Dr – Two homes on one R2 lot in prime Newport Heights, offering strong value-add and rental upside. This never-before-sold property is a rare find with each residence consisting of 2-bed and 2-bath. Ideal for investors, developers, or owner-occupants seeking income potential. Add immediate value through cosmetic upgrades or explore redevelopment opportunities including potential condo conversion in one of Newport Beach’s most desirable neighborhoods. 1501 Cliff Dr features a spacious living room with high ceilings and fireplace, a flexible family/dining area, kitchen, full bath, and downstairs bedroom. Upstairs is a large primary suite with en-suite bath and walk-in closet. 1503 Cliff Dr offers a similar layout with a living room, kitchen, full bath, and bedroom downstairs, and a large upstairs suite with full bathroom. Located in a highly walkable area close to top schools, 17th Street dining and retail, the Back Bay, and beaches, this property is loaded with potential for short- or long-term upside.