

























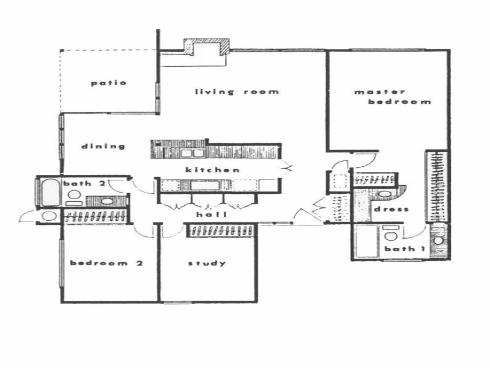
Welcome to The Bluffs neighborhood in Eastbluff in Newport Beach. This Bluffs original Linda plan has 2 bedrooms and 2 baths with a den that is easily converted back to a third bedroom. This floorplan plan is designed for ultimate privacy with separation between the main bedroom ensuite and the two bedrooms and bath on the other side of the home. You can never have enough storage, and this home has extensive storage with a long hallway of cabinets and large coat closet. The kitchen opens to the living room and dining room which have vaulted exposed wood ceilings - casual and elegant. It is truly California living with abundant windows and easy access to a very large and sunny back patio wrapping around the side of the house. Breakfast on the patio in the morning sun enjoys a lovely view of the green belt and mature trees. The property is in well maintained original condition in a great location with unusually generous outdoor space. The Bluffs neighborhood is known for its amazing gardens and miles of greenbelts wrapped around Newport’s Back Bay and Wildlife Sanctuary. The well-appointed shopping center and award-winning schools are within easy walking distance.