















































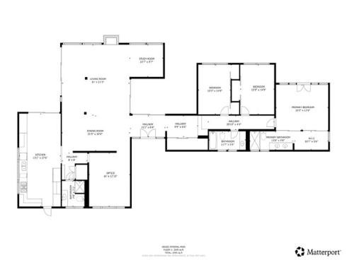
Designed in 1955, this architecturally significant residence reflects the influence of the Case Study movement and the early organic modernists who shaped Southern California architecture. The home’s warm redwood ceilings, exposed beams, expansive glass walls, courtyard garden, and long horizontal rooflines are hallmarks of the region’s most celebrated designers, including the work associated with Fred Briggs in North Tustin. This rare example of true mid-century design offers classic indoor-outdoor living framed by stone, wood, and beautifully landscaped garden courts. From the moment you pass the private wall, the home reveals itself as a retreat of warmth and intention. Redwood ceilings and a centerpiece fireplace anchor the interior, while walls of glass frame sweeping courtyards bathed in natural light, turning each space into a living work of art. Timeless craftmanship and thoughtful updates elevate the experience. Beyond the walls, the private vignettes connect living spaces to nature, inviting sunsets, starlit gatherings and the quiet rhythm of life. The sparkling pool offers serenity without pretense. Set on nearly 15,000 square foot lot, this home is a rare architectural treasure. Here you are part of a community that values privacy, design, and the spirit of California modernism. North Tustin is not just a neighborhood, but a place where identity is rooted in harmony with the land, timeless style, and the bounds of neighbors who appreciate both beauty and authenticity. In a world of ordinary, this is extraordinary. A one-of-a-kind home that will speak not only to your sense of style, but also to your sense of belonging. Incorporated in the lot size is ample space for another building, home addition, ADU, RV parking, garage, pickleball court...endless possibilities.