




















































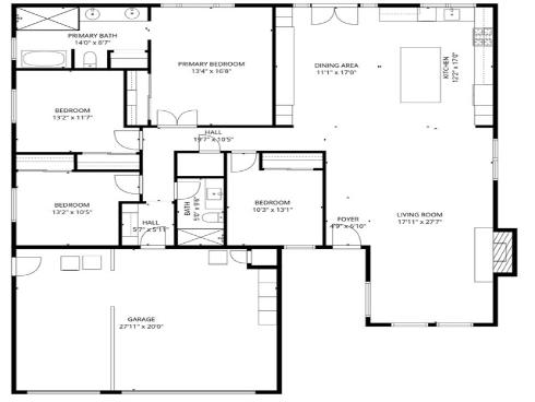
Welcome to 249 N Quail Ln, a beautifully updated single-level home in Orange featuring comfort, style, and inviting indoor-outdoor living. With 4 bedrooms, 2 bathrooms, and approximately 1,936 square feet of living space on a 6,565 square foot lot, the home showcases a bright and open layout designed for both everyday living and entertaining. The thoughtfully updated interior provides a warm and welcoming feel with spacious living areas filled with natural light and a seamless flow between the kitchen, dining, and main living spaces. The primary suite serves as a relaxing retreat, while the additional bedrooms offer flexibility for guests, a home office, or hobbies. Large windows enhance the airy atmosphere throughout. The backyard is designed for enjoyment and entertaining, featuring a pool and spa along with a covered patio ideal for outdoor dining and gatherings. The fully finished 3-car garage provides versatile space suitable for a home gym, workshop, storage, or hobby area. Conveniently located near parks, shopping, dining, and major freeways, this home combines comfortable living with easy access to everything Orange has to offer.