




































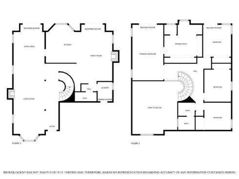
Welcome to 6142 E. West View Drive, Nestled on a Rare, Fully Private Lot Within the Highly Sought-After 24 Hour Guard Gated Community of Rocking Horse Ridge. This Move-In Ready Dream Home Enjoys Four Bedrooms, Two and a Half Bathrooms, New Carpet, New Interior and Exterior Paint, Newer Dual Pane Windows, Newer Water Heater, Newer Re-Pipe, and Breathtaking Views. Enjoy the 180 Degree Unobstructed View of the Ocean, Catalina Island, City Lights and Sunset from the Dining Room, Family Room, Kitchen, Primary Bedroom, and Backyard. The Light & Bright Living Room Showcases a Cozy Fireplace, Bay Window, Vaulted Ceiling with Skylight, and Opens to the Dining Room with Backyard Access. The Gourmet Kitchen Includes Granite Counters, Thermador Dual Ovens, Thermador Stove, Thermador Warming Drawer, KitchenAid Built-In Fridge and Dishwasher, Peninsula with Seating, Backyard Views, and Opens to the Family Room. The Family Room Features a Fireplace, Wet Bar, and Direct Backyard Access. The Primary Suite Boasts a Vaulted Ceiling, Dual Vanities, Dual Closets, Walk-In Shower with Frameless Glass, Separate Tub, and Private Balcony with Magnificent Views. The Low Maintenance and Private Backyard Includes a Newer Covered Patio and Pergola, Grass Area, Spa, Firepit, and Multiple Seating Areas, Perfect for Entertaining. Direct Access Two Car Garage with Epoxy Floors, Paver Driveway, Built-In Cabinets, and Attic Storage. Indoor Laundry Room with Built-In Cabinets. Rocking Horse Ridge HOA Amenities Include a Junior Olympic Size Pool, Spa, Tennis Courts, Pickleball Courts, Greenbelt, Playground, Clubhouse and Two Ocean Viewpoints. Centrally Located Allowing Easy Access to the 5/55/22/91 Freeways and the 241/261/133 Toll Roads. A Short Drive to Local Shops, Food, Entertainment, Old Town Orange (Plaza), and Hiking/Biking Trails at Irvine, Santiago Oaks, and Peters Canyon Regional Parks. 6142 E. West View Drive is a Must See!