714-914-4996

707 E Tularosa ,
Orange, CA 92866

$1,275,000

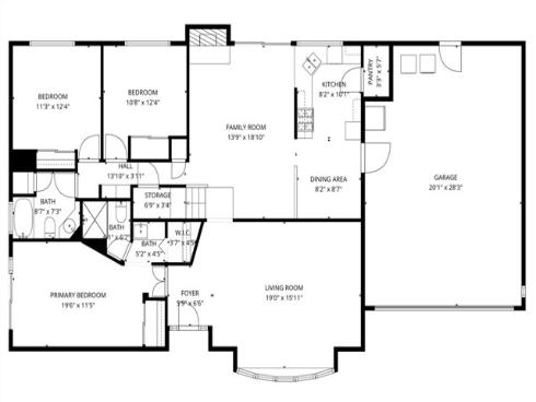
Welcome to this spacious 5-bedroom, 3-bathroom home tucked away at the end of a quiet cul-de-sac in one of Orange’s most desirable neighborhoods. Sitting on a large lot, the property offers endless potential—whether you envision adding a pool, creating an outdoor entertaining oasis, or building an ADU for extended family or rental income. RV parking provides additional flexibility for today’s lifestyle. The thoughtful floor plan includes 3 bedrooms on the main level, including the primary suite, making it ideal for multi-generational living. Freshly painted and move-in ready, the home invites you to settle in today while still leaving room to personalize and add value over time. Just minutes from the historic Orange Circle and Chapman University, you’ll love the convenient location close to dining, shopping, and community events. This is a rare opportunity to own a home with space, versatility, and unlimited possibilities in the heart of Orange.

Basic Information

MLS #:
PW25231629

Price:
$1,275,000

Price
(per sq ft):
$634.00

Address:
707 E Tularosa ,
Orange, CA 92866

MLS Area:
OTO - Old Towne Orange

Subdivision:

Property
Type:
Single Family Residence

Days on Market:
62

Status:
Active Under Contract

Bedrooms:
5

Bathrooms:
3

Full Baths:
3

Size (sq ft):
2,011 sq ft

Lot Size:
7,840 sq ft

Year Built:
1969

Sale Type:
Standard

Rooms in Home

Rooms:
Entry, Family Room, Kitchen, Living Room, Main Floor Bedroom, Main Floor Primary Bedroom, Walk-In Closet

Eating Area:
Breakfast Nook, Separated

Laundry:
In Garage

Entry Location:
1

Interior Features

Fireplace:
Family Room

Cooling:
Central Air

Heating:
Central

Floor:
Carpet, Laminate, Tile

Appliances:
Dishwasher, Double Oven, Gas Cooktop, Water Line to Refrigerator

Interior Features:

Security:

Accessibility:

Garage and Parking

Garage:
Attached

Garage:
2 Spaces

Carport:
0 Spaces

Parking:
Direct Garage Access, Driveway, Garage Faces Front, RV Access/Parking

Home Owners Association

HOA Dues 1:
$0.00 /

HOA Dues 2:
$

HOA Amenities: 

Utilities

Water:
Public

Utilities:

School Information

District:
Orange Unified

Elementary:

Middle:

High:

Exterior Features

Pool:
None

Spa:
None

Patio:

View:
None

Construction:

Foundation:

Roof:
Composition

Windows:
Double Pane Windows

Common Walls:
No Common Walls

Levels:
Two

Lot Features:
Cul-De-Sac, Front Yard, Lawn, Sprinkler System

Additional Information

County:
Orange

Senior Community:
No

Community Features:
Sidewalks, Storm Drains, Street Lights

Other Structures:

Structure Condition:

Direction Faces:

Listed by:
Caliber Real Estate Group , Tracey Marcyan , 01884787

Co-Listed:

Last
Updated:
12/4/2025 10:55 PM

707 E Tularosa ,
Orange, CA 92866