714-914-4996

994 N Cleveland Street,
Orange, CA 92867

$1,599,000

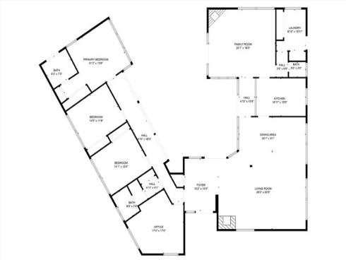
Welcome to 994 N Cleveland Street, an architect-designed, custom-built single-story ranch residence where timeless design meets comfort and sophistication. Originally crafted in 1960 by a distinguished local architect, this 3-bedroom, 2.5-bathroom estate offers approximately 2,916 square feet of living space on a rare, oversized 17,064 square foot end-of-cul-de-sac lot—one of the most sought-after settings in Orange. The home’s thoughtful layout balances elegance and livability. A formal living room with fireplace and a refined dining room set the stage for gatherings, while the spacious family room also with a fireplace and updated kitchen provide a welcoming hub for everyday life. A large dedicated office allows flexibility as a potential fourth bedroom. Designed to embrace Southern California’s indoor-outdoor lifestyle, the residence partially wraps around a private backyard retreat, complete with a sparkling pool, mature fruit trees, and lush greenery—ideal for hosting or simply unwinding in tranquility. Additional highlights include a detached rear-facing two-car garage, an expansive driveway with RV/guest parking, and generous grounds offering space for gardening, play, or future expansion. The property has a large utility/Laundry room. The Neighborhood Situated in one of Orange’s most desirable enclaves, this property enjoys both privacy and convenience. Just moments away lies the charm of Old Towne Orange, renowned for its historic plaza, antique shops, and award-winning dining. The home is also close to Chapman University, top-rated schools, and cultural destinations like the Hilbert Museum of California Art. For leisure, nearby Peters Canyon Regional Park and Santiago Oaks Regional Park offer miles of trails, while Disneyland Resort, Angel Stadium, and Honda Center provide world-class entertainment within minutes. Easy freeway access ensures a seamless connection to the beaches of Newport, Huntington, and Laguna, as well as the greater Southern California region.

Basic Information

MLS #:
OC26005547

Price:
$1,599,000

Price
(per sq ft):
$548.00

Address:
994 N Cleveland Street ,
Orange, CA 92867

MLS Area:
OTO - Old Towne Orange

Subdivision:

Property
Type:
Single Family Residence

Days on Market:
66

Status:
Active Under Contract

Bedrooms:
3

Bathrooms:
3

Full Baths:
0

Size (sq ft):
2,916 sq ft

Lot Size:
17,064 sq ft

Year Built:
1960

Sale Type:
Trust,Standard

Rooms in Home

Rooms:
Primary Bedroom, Entry, All Bedrooms Down, Main Floor Primary Bedroom, Kitchen, Living Room, Main Floor Bedroom, Family Room, Primary Bathroom

Eating Area:

Laundry:
Inside, Gas Dryer Hookup, Individual Room, Washer Hookup

Entry Location:
1

Interior Features

Fireplace:
Living Room, Family Room

Cooling:
Central Air

Heating:
Fireplace(s), Natural Gas, Forced Air, Central

Floor:
Tile, Vinyl, Wood

Appliances:
Gas Water Heater, Electric Cooktop, Water Purifier, Water Line to Refrigerator, Water Softener, Built-In Range, Self Cleaning Oven, Electric Range, Disposal, Dishwasher, Vented Exhaust Fan, Microwave

Interior Features:
Beamed Ceilings, Bar, Quartz Counters, Block Walls, Unfurnished, High Ceilings, Pantry, Sump Pump, Brick Walls, Open Floorplan, Granite Counters

Security:

Accessibility:
No Interior Steps, Grab Bars In Bathroom(s)

Garage and Parking

Garage:
Detached

Garage:
2 Spaces

Carport:
1.00 Spaces

Parking:
Carport, Driveway, Garage Faces Rear, RV Potential

Home Owners Association

HOA Dues 1:
$0.00 /

HOA Dues 2:
$

HOA Amenities: 

Utilities

Water:
Public

Utilities:

School Information

District:
Orange Unified

Elementary:

Middle:

High:

Exterior Features

Pool:
In Ground, Private

Spa:
None

Patio:

View:
Neighborhood

Construction:

Foundation:

Roof:

Windows:

Common Walls:
No Common Walls

Levels:
One

Lot Features:
Cul-De-Sac, Back Yard, Yard

Additional Information

County:
Orange

Senior Community:
No

Community Features:
Curbs, Sidewalks

Other Structures:

Structure Condition:

Direction Faces:

Listed by:
Realty Discount Corporation , Kurt Steffien , 01846666

Co-Listed:

Last
Updated:
3/17/2026 11:17 PM

994 N Cleveland Street,
Orange, CA 92867