











































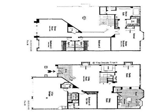
A Dove Canyon home that represents a true entertainer’s dream. This private, 3,643-square-foot home features four bedrooms and five bathrooms on a large lot offering breathtaking 270-degree panoramic views. The interior is highlighted by a spacious living room with soaring ceilings, custom stonework, a dramatic fireplace, and hardwood flooring throughout. A full wall of windows overlooks the Dove Canyon Clubhouse and the Cleveland National Forest. The home also features a spacious family room with quality built-ins and a renovated kitchen equipped with an expansive wood-topped island, leathered granite countertops, and newer appliances, including a double oven. A conveniently located wet bar sits between the family and living rooms, allowing for a seamless flow into the backyard, which is complete with an outdoor kitchen, bar, and viewing deck. All bedrooms include en-suite bathrooms, including a large primary suite with vaulted ceilings, two large closets, and an attached balcony with expansive views. Additionally, the property includes a spacious upstairs bonus room that can easily be converted into a fifth bedroom or office. The backyard is perfectly situated behind the 16th tee of the signature Jack Nicklaus golf course, providing one of the best views on the course without the risk of errant golf balls. With close proximity to the toll road, shopping, restaurants, and trails, combined with low taxes and HOA fees, this property is a must-see.