




















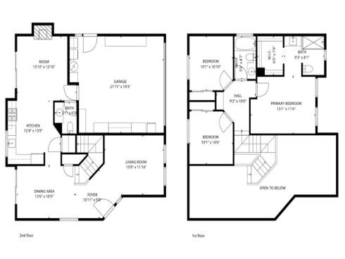
Welcome home to this charming, bright and open floor plan for comfortable everyday living. The separate living and dining rooms feature vaulted ceilings that create an airy, spacious feel, along with a sliding door that opens to the backyard for easy indoor-outdoor flow. The kitchen is efficiently laid out with a pantry for extra storage and sits right next to the family room, making it easy to stay connected while cooking. You’ll also enjoy convenient access to both the garage and backyard from this area. Upstairs, you’ll find two secondary bedrooms side by side with a hall bathroom, plus a primary suite featuring a peek-a-boo mountain view, upgraded walk-in shower, and a generous walk-in closet. The garage includes built-in storage, and the spacious backyard is ready for entertaining with new vinyl fencing, some wood fencing, and a few fruit trees — great for gatherings with friends and family. All of this within walking distance to Trabuco Mesa Elementary School, Trabuco Mesa Park and scenic RSM lake that offers some water activities such as fishing, kayaking etc.