





































































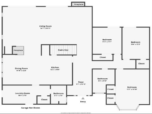
Welcome to one of Rossmoor’s most desirable interior-tract homes, tucked away on a quiet, tree-lined street just a short stroll from vibrant Rush Park. This expansive 4-bedroom, 3-bathroom home with an office offers a rare blend of comfort, function, and elegance in a coveted neighborhood known for its top-rated schools and unbeatable community spirit. A dramatic formal entry welcomes you with a soaring ceiling, upper balcony, and direct sightlines to the bright and inviting living room. A cozy brick fireplace anchors the space, which opens seamlessly into the family room. Walls of full-length windows and a French door frame views of the enormous backyard and flood both rooms with natural light. The dining room, separated by a charming double-sided fireplace with bench seating, features a built-in buffet with wine racks and a large picture window overlooking the lush yard. At the heart of the home is a generously sized kitchen with a large center island, cooktop with hood, custom wood cabinetry, a walk-in pantry, and ample counter space. Just off the kitchen, the laundry room includes a ¾ bath, direct access to the two-car garage (which is heated), and a side door to the exterior. Three guest bedrooms and a full bathroom are conveniently located downstairs, offering flexibility for multi-generational living, guest quarters, home offices, workout rooms, or play areas. Upstairs, the expansive primary suite is a true retreat—featuring a fireplace, coved ceiling, recessed lighting, and French doors overlooking the backyard. The en suite bath offers dual vanities, a jetted tub, and a glass-enclosed shower. Also upstairs is a large bonus room with French doors and a spacious stand-up attic (heated and insulated) ideal for storage, future finished space, or a creative studio, all just off the large second-floor landing/loft. Step outside into the entertainer’s dream yard—an oversized lot with two covered patios, a built-in BBQ island, and a firepit, all set on handsome brick pavers. The expansive lawn, mature shade tree with swing, and lush privacy hedges create a park-like setting. An extra feature of this home is SOLAR - which is owned! Located within the award-winning Los Alamitos School District and ideally situated near the 605 and 405 Freeways for easy access to both Los Angeles and Orange County, this home offers more than just space—it delivers a lifestyle.