









































































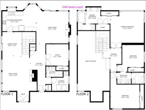
Welcome to 2144 Camino Laurel, a breathtaking coastal retreat nestled within the prestigious, guard-gated community of Marblehead. As the largest floor plan in Highland Light Village, this impeccably designed two-story home boasts 4 beds & 3 baths in 2,435 square feet of light-filled living space. As you step inside, you’ll be greeted by soaring ceilings, oversized windows, & an abundance of natural light that accentuates the home’s open, airy layout. The formal living & dining areas exude warmth & elegance, complete with a cozy fireplace—perfect for intimate gatherings. The beautifully updated kitchen with crisp white cabinetry & stainless steel appliances flows seamlessly into the family room, creating an inviting space for everyday living & entertaining. The MAIN LEVEL GUEST ROOM & an updated bathroom offer convenience & comfort, while a dedicated laundry room with a sink is perfectly practical. Upstairs, the updated primary suite is a true retreat, featuring vaulted ceilings, dual vanities, separate soaking tub & shower, & a private water closet—all designed for ultimate relaxation. The 2 additional upstairs bedrooms share a beautifully remodeled Jack-and-Jill bathroom, & there's even a peek ocean view from the front guest room so you can catch those spectacular sunset colors! Step outside into your serene backyard oasis, featuring the ultimate custom design steel patio cover. Electric powered, this savvy shade structure features a louvered design that can be opened or closed, allowing you to control the sunlight to your comfort & making it the perfect setting for al fresco dining, morning coffee, or unwinding after a long day. Enjoy more thoughtful upgrades like brand-new interior doors finished with gorgeous hardware, dark-finish engineered hardwood floors on both levels, newly installed fire sprinklers, fresh attic insulation, a whole-house water filtration system, & energy-efficient windows (installed just one year ago). You'll love the leased solar panels for sustainable, cost-effective energy. Located just moments from stunning ocean views, scenic hiking trails, top-rated schools, shopping destinations, & world-class beaches, your new home places you at the heart of Southern California’s most coveted coastal lifestyle. With the iconic San Clemente Pier, Dana Point Harbor, & the vibrant downtown San Clemente scene just minutes from your door, this is more than a home—it’s a lifestyle of luxury, convenience, & coastal charm.