









































































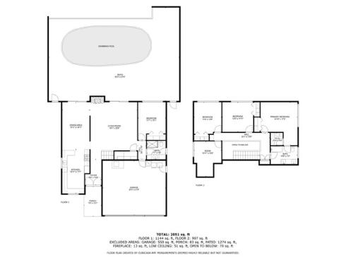
Welcome to a home that invites you to slow down, breathe deeply, and enjoy the best of Seal Beach living. Tucked in the heart of the highly desirable College Park East neighborhood, this 5-bedroom, 2-bathroom sanctuary offers 2,286 square feet of coastal comfort. From the moment you drive up to the home you are welcomed by the soft ocean breeze and an inviting curb appeal, enter through the front double doors and you will be drawn into the sense of warmth and welcome—a feeling that you’ve found something truly special. Step inside to discover beautifully updated flooring and a remodeled kitchen bathed in natural light from its sunny, south-facing window. Quartz countertops, sleek cabinetry, and recessed lighting create a clean, calming space where everyday moments feel elevated. The home features two spacious primary bedrooms—one upstairs and one down—offering flexibility for multi-generational living or a peaceful guest retreat. The 3 secondary bedrooms are upstairs with the smaller Southwest bedroom being perfect for a craft room, home office or study. Both bathrooms have been thoughtfully upgraded, and the 3-car garage is a dream: epoxy floors, custom cabinetry, and a convenient pull-down attic ladder offer functionality with flair. Step into the backyard and feel the serenity of your own private retreat. A recently updated pool with new tile, pebble tech and baja shelf glistens under the sun, perfect for floating, unwinding, or gathering with loved ones. Modern wood privacy gates and trees offer both elegance and seclusion. Beyond the beauty of the home itself lies the lifestyle that College Park East is known for—tree-lined streets, a true sense of community, and access to the award-winning Los Alamitos School District from K-12. Whether you are looking to enjoy nearby parks, heading to the sands of Seal Beach, enjoying a round at Old Ranch Country Club, or shopping and dining in Rossmoor/Seal Bach, you’re never far from what matters most. This isn’t just a place to live—it’s a place to thrive, to connect, and to come home to.