714-914-4996

10371 Courtright ,
Stanton, CA 90680

$1,199,000

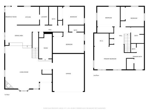
Price Adjustment! Must See. Beautifully Updated 5-Bedroom Home with Downstairs Office & Spa-Inspired Primary Suite in Stanton Welcome to this spacious and thoughtfully upgraded two-story home featuring 5 bedrooms and 4 bathrooms in a desirable Stanton location. Designed for comfort and flexibility, this home offers a bright open layout with new interior paint, updated flooring, recessed lighting, and plantation shutters throughout. The inviting living room features a cozy fireplace, while the updated kitchen offers freshly painted cabinetry, generous counter space, and convenient access to the indoor laundry room. A downstairs office/flex room provides ideal space for working from home, a playroom, gym, or guest area. Upstairs, the expansive primary suite is filled with natural light and features a remodeled spa-inspired bathroom with modern tile finishes, multi-function shower system, built-in bench seating, safety handrails, and a walk-in jetted soaking tub with aromatherapy lighting — your private retreat at the end of the day. Additional features include: • Dual-zone heating & A/C (separate systems for upstairs and downstairs) • Fully paid-off solar panels • In-wall central vacuum system • Two-floor intercom system • Attached 2-car garage with newly finished epoxy flooring • Extended driveway parking for up to 3 vehicles • Iron security gates at front and rear for added privacy Step outside to a spacious backyard with mature fruit trees lovingly maintained by the sellers, including avocado, Meyer lemon, dwarf king apricot, Santa Rosa plum, and peach. A covered patio and exterior lighting create a welcoming space perfect for entertaining and holiday gatherings. Located near local shops, markets, parks, freeways, and within the Anaheim Union High School District for middle and high school attendance. Easy access to nearby cities, including Anaheim, Cypress, Garden Grove, Buena Park, Westminster, and more. A wonderful opportunity for families seeking a spacious, updated home with versatile living space and excellent location. **Certain images may include virtual staging or digital enhancements; buyers are advised to verify all features and conditions in person.

Basic Information

MLS #:
OC26031084

Price:
$1,199,000

Price
(per sq ft):
$404.00

Address:
10371 Courtright ,
Stanton, CA 90680

MLS Area:
61 - N of Gar Grv, S Of Ball, E of Knott, W of Dal

Subdivision:
Other (OTHR)

Property
Type:
Single Family Residence

Days on Market:
18

Status:
Pending

Bedrooms:
5

Bathrooms:
4

Full Baths:
3

Size (sq ft):
2,963 sq ft

Lot Size:
6,500 sq ft

Year Built:
1959

Sale Type:
Standard

Rooms in Home

Rooms:
Laundry, Office, Kitchen

Eating Area:

Laundry:
Gas & Electric Dryer Hookup, Washer Included, Dryer Included

Entry Location:
1

Interior Features

Fireplace:
Gas

Cooling:
Central Air

Heating:

Floor:

Appliances:
Refrigerator, Gas Range, Dishwasher

Interior Features:

Security:

Accessibility:

Garage and Parking

Garage:
Attached

Garage:
2 Spaces

Carport:
0 Spaces

Parking:

Home Owners Association

HOA Dues 1:
$0.00 /

HOA Dues 2:
$

HOA Amenities: 

Utilities

Water:
Public

Utilities:

School Information

District:
Anaheim Union High

Elementary:
HANSEN

Middle:
ORANGE

High:
WESTER

Exterior Features

Pool:
None

Spa:

Patio:

View:
None

Construction:

Foundation:

Roof:

Windows:

Common Walls:
No Common Walls

Levels:
Two

Lot Features:
0-1 Unit/Acre

Additional Information

County:
Orange

Senior Community:
No

Community Features:
Sidewalks

Other Structures:

Structure Condition:

Direction Faces:

Listed by:
California Financial & RE Ctr , Angela Wong , 02123385

Co-Listed:

Last
Updated:
3/17/2026 5:20 PM

10371 Courtright ,
Stanton, CA 90680