
























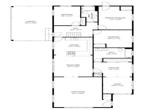
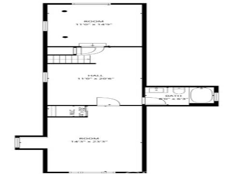
Welcome home to 10872 Flower Ave — a beautifully renovated two-story residence offering nearly 2,400 sq ft of flexible living space on a generous 6,600+ sq ft flat lot. Featuring **5 bedrooms and 3 full baths**, this spacious home has been thoughtfully updated throughout with new flooring, fresh paint, a modern open kitchen, stylish bathrooms, upgraded 220V electrical panel, new HVAC, water heater and more. The versatile layout includes a large upstairs retreat that can serve as a private primary suite, home office, gym, or media room — ideal for **multigenerational living** or creating separate living quarters. The expansive lot offers ample space for parking, outdoor entertaining, or future **ADU /JADU potential**. Enjoy being just minutes from **Disneyland**, **Knott’s Berry Farm**, major freeways, shopping, dining, and entertainment. This move-in-ready Stanton gem combines comfort, space, and location — the perfect place to make your next chapter feel like home.