






































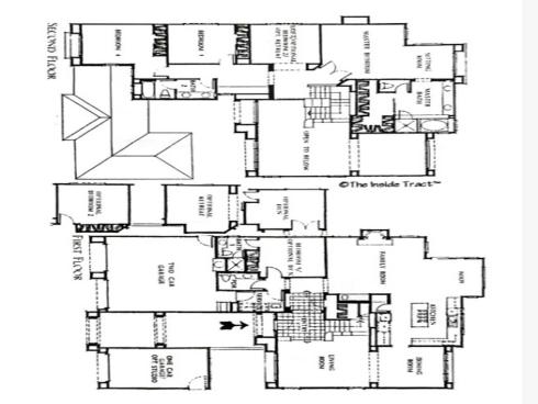
WONDERFUL FLOORPLAN LOCATED IN GATED COMMUNITY. BEDROOM AND 3/4 BATH DOWN (CURRENTLY USED AS AN OFFICE) WITH ADDITIONAL HALF BATH. FORMAL LIVING AND DINING AREAS, GOURMET KITCHEN WITH PLENTY OF CABINETS AND GRANITE COUNTERTOPS WITH CENTER ISLAND. THE KITCHEN OPENS TO A BREAKFAST NOOK WITH VIEW OF THE POOL. THE FAMILY ROOM FEATURES A FIREPLACE AND CUSTOM BUILT IN ENTERTAINMENT CENTER AND WET-BAR. BEAUTIFUL MARBLE FLOORS ADORN THE DOWNSTAIRS WITH NEUTRAL CARPET ACCENTS. UPSTAIRS OFFERS 3 BEDROOMS WITH A BONUS ROOM/BEDROOM AND A FULL BATHROOM WITH DUAL VANITY SINKS. THE MAIN BEDROOM IS HUGE AND FEATURES AN OVER-SIZED MAIN BATHROOM SUITE COMPLETE WITH DUAL SINK VANITY, SOAKING TUB, SHOWER STALL AND WALK IN CLOSET. THERE IS A 2-CAR ATTACHED GARAGE WITH EPOXY FLOORS. THERE IS AN ADDITIONAL DETACHED ONE CAR GARAGE WITH FRECH DOORS. (CAN BE USED AS OFFICE, STUDIO, PLAYROOM OR GYM) THE BACKYARD IS GREAT FOR ENTERTAINING AND BOAST A BEAUTIFUL POOL AND SPA. A CUSTOM BUILT-IN BBQ COMPLETES THE BACKYARD AMENTIES. GREAT LOCAL SHOPPING, AWARD WINNING SCHOOLS AND EASY ACCESS TO TRANSPORTATION MAKE THIS HOME HIGHLY DESIRABLE. NEW PAINT INSIDE AND OUT WITH A TERMITE CLEARANCE AND HAS A SECURITY SYSTEM ( YOU PAY TO CONNECT SERVICE)