
























































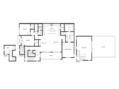
Welcome to 419 Transport in the Levity community at Tustin Legacy, a former model home with a premium corner location offering ample natural light and elevated views. This three-story, single-level living flat features 3 bedrooms, 3 bathrooms on the same floor, and a versatile third-level entertainment space that opens to a spacious rooftop deck. The 2,546 sqft home impresses with modern, designer finishes at every turn, from motorized roller shades and lighting to wallpaper accents, custom shiplap, and large-format porcelain tile throughout. The main level lives like a single-story home, with the kitchen, great room, bedrooms, baths, and laundry all situated on one floor. The expansive great room is anchored by a striking floor-to-ceiling tile fireplace wall and a balcony that overlooks the community area. The kitchen blends style and function with quartz countertops, a full herringbone backsplash, a walk-in pantry, GE Profile stainless steel appliances, pendant lighting over the generous island, and integrated under-cabinet lighting. All three bedrooms are thoughtfully positioned on this level, including a refined primary suite, a secondary ensuite bedroom enhanced by French doors that open to a charming Juliet balcony, and a spacious third room. The primary suite offers large windows, a feature wall backdrop, and an ensuite bath with a KOLER smart bidet toilet, an oversized walk-in shower with stacked glossy white subway tile, and hexagon mosaic flooring. The third floor features a bonus room with a dry bar and a charcoal-toned tile fireplace wall set in a modern herringbone pattern. The stacking doors open to the rooftop deck, ideal for entertaining, relaxing, or outdoor dining. Additional highlights include a 569 sqft two-car garage with epoxy flooring, storage cabinets, an extra storage closet, a tankless water heater, and an electric vehicle charger. Residents of Levity enjoy resort-style amenities, including a pool, spa, and barbecue area. The location offers exceptional convenience, with easy access to top-rated Legacy Magnet Academy, Victory Park, The District, Newport Beach, and John Wayne Airport.