







































































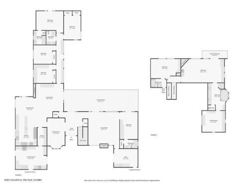
18301 Churchill Lane is a standout Villa Park estate offering exceptional space, comfort, and resort-style amenities on a quiet, tree-lined street. This 7 bedroom home features expansive, light-filled living spaces with a natural flow that works equally well for entertaining and daily life. Five bedrooms are conveniently located on the main level, providing ideal accommodations for family, guests, home offices, or multi-generational living. Upstairs, the primary suite is positioned as a true private retreat, complete with a dedicated sitting area that offers separation, comfort, and privacy. The kitchen opens seamlessly to the main living areas, creating an inviting environment for gatherings both large and small. The backyard is designed for year-round enjoyment and recreation, featuring a resort-inspired setting with a sparkling pool, manicured putting green, and a charming gazebo. Whether hosting friends, enjoying family time, or unwinding at the end of the day, the outdoor spaces offer privacy, versatility, and a relaxed Southern California lifestyle surrounded by mature landscaping. Don't miss this opportunity to call this place home!