

































































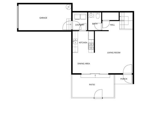
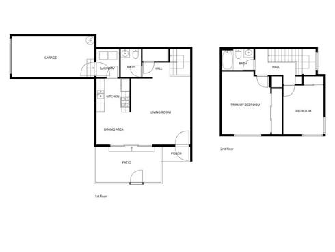
Welcome to 20333 Cranberry Lane, a well-located 2-bedroom, 1.5-bath condo nestled in the desirable Fairmont Hill community of Yorba Linda. This up-and-down floor plan features an attached garage with direct access for everyday convenience. The main level offers a spacious living area, a bright kitchen with fresh white cabinetry and stainless steel appliances—including a brand-new dishwasher and garbage disposal—along with a powder room and a dedicated laundry room. Upstairs, you’ll find two generously sized bedrooms and a full bathroom. The entire home has been freshly repainted and finished with new carpet, creating a clean, neutral canvas ready for its next owner to add personal style and make it their own. Fairmont Hill residents enjoy an impressive lineup of amenities, including two swimming pools with spas, a playground, sand volleyball court, racquetball court, and more. The HOA covers basic cable and trash service, adding to the ease of everyday living. Ideally situated near the 91 Freeway, this home offers quick access to shopping and dining at Yorba Linda Town Center and Savi Ranch, with outdoor recreation just a half-mile away at Yorba Linda Regional Park. The community is also served by top-rated Placentia-Yorba Linda Unified schools, including Glenknoll Elementary, Bernardo Yorba Middle School/Orange County School of Computer Sciences, and Esperanza High School. Fairmont Hill is FHA approved—FHA buyers welcome! 20333 Cranberry Lane is a place you’ll truly love to call home.